跳到主要內容區塊
手機版選單
search
分享、字級大小、列印、注音符號、回上一頁及搜尋不支援No JavaScript
搜尋
進階搜尋
分享
分享到Facebook(另開新視窗)
分享到google+(另開新視窗)
Plurk(另開新視窗)
分享到twitter(另開新視窗)
分享到line(另開新視窗)
分享到email(另開新視窗)
機關介紹
處長介紹
副處長介紹
業務職掌
單位連絡資訊
政府資訊公開
法規資訊
組織職掌地址電話電子郵件信箱
行政指導有關文書
施政計畫
業務報告
業務統計
研究報告
預算及決算書
請願之處理結果及訴願之決定
書面之公共工程及採購契約
合議制機關之會議紀錄
大事紀專區
辦理政策及業務宣導專區
性別統計
公告資訊
公告資訊
活動與政令宣導
徵才
便民服務
金門縣政府網路e櫃台
資料開放平台
縣民卡主題網
1999主題網
意見信箱
無線網路熱點
檔案上下載
常見問答
業務專區
研考業務
綜計業務
資訊管理業務
法制法規
個人資料保護宣導
輿情說明
相關連結
補助公告專區
收件者Email
回首頁
網站導覽
意見信箱
常見問題
雙語詞彙
縣府首頁
English
FB粉絲專頁
訊息
資安及隱私權宣告
無障礙聲明
著作權聲明
:::
收件者Email
回首頁
網站導覽
意見信箱
常見問題
雙語詞彙
縣府首頁
English
FB粉絲專頁
分享
分享到Facebook(另開新視窗)
分享到google+(另開新視窗)
Plurk(另開新視窗)
分享到twitter(另開新視窗)
分享到line(另開新視窗)
分享到email(另開新視窗)
字級
字級小
字級中
字級大
金門縣政府綜合發展處
金門縣政府綜合發展處
:::
機關介紹
處長介紹
副處長介紹
業務職掌
單位連絡資訊
政府資訊公開
法規資訊
組織職掌地址電話電子郵件信箱
行政指導有關文書
施政計畫
業務報告
業務統計
研究報告
預算及決算書
請願之處理結果及訴願之決定
書面之公共工程及採購契約
合議制機關之會議紀錄
大事紀專區
辦理政策及業務宣導專區
性別統計
公告資訊
公告資訊
活動與政令宣導
徵才
便民服務
金門縣政府網路e櫃台
資料開放平台
縣民卡主題網
1999主題網
意見信箱
無線網路熱點
檔案上下載
常見問答
業務專區
研考業務
綜計業務
資訊管理業務
法制法規
個人資料保護宣導
輿情說明
相關連結
補助公告專區
search
分享、字級大小、列印、注音符號、回上一頁及搜尋不支援No JavaScript
搜尋
進階搜尋
:::
首頁
政府資訊公開
大事紀專區
114年8月縣政紀要大事紀
114年8月縣政紀要大事紀
網頁功能
列印內容
MataData
注音符號
1140805 資安管理審查會議 檢視制度落實情形
配合資安法規定,本府於114年8月5日假第一會議室召開資安管理審查會議,檢視資安制度落實情形及確保遵循標準規範,以利機關資安管理措施能適應不斷變化的環境,俾有效防範及應對各種資安風險。
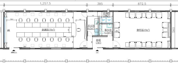
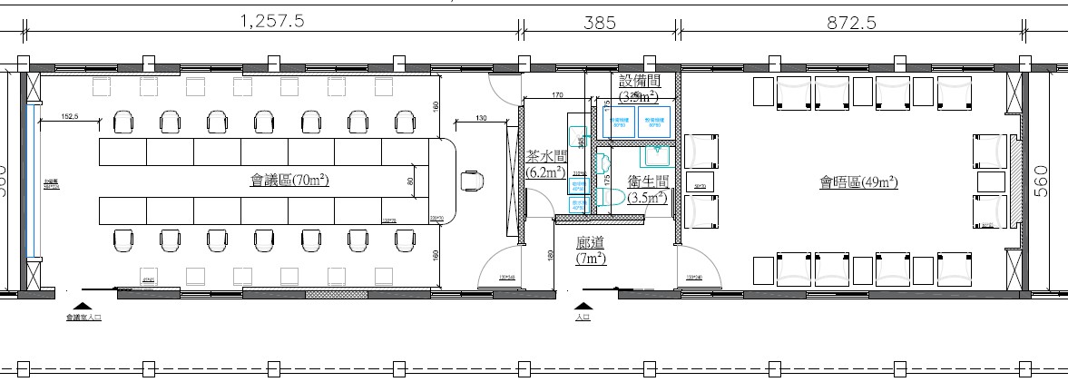
1140813 金門縣政府第五會議室暨會客室評選作業
金門縣設立於民國4年,民國38年國軍轉戰反共基地,十萬大軍進駐金門,期間戒嚴後再實施戰地政務,至民國81年11月7日解除戰地政務,回歸地方自治後均著重於地方基礎建設,而縣政府辦公廳署則不及思著,現有政府廳署陸續肇建於民國57年至83年期間,相關建物均未有升降電梯之設置,為有效滿足無障礙會議使用需求,推動規劃於西棟一樓設置會議室及會客室,營造優質舒適友善之服務環境。
本案規劃15人固定席位會議室及10人固定席位會客室,使用空間結合金門主題及元素進行設計,以樑柱美化、複式照明及牆面吸音材質等設計,打造專業、舒適的空間氛圍,同時配合整體空間規劃,將線路、設備及門扇做隱藏式設計,營造簡潔明亮的使用環境。同時於會議室及會客室之間空間依使用功能整體設計布局,打造複合式多功能空間,包括機電室、茶水間及衛生間等使用需求。該區域作為連結大門、會議室及會客室之間的緩衝地帶,應整合入口的功能形象以及抽象概念的轉化,打造具指認意義的入口意象。
1140827 資安第三方外部稽核
為持續推動資訊安全管理系統第三方驗證,及符合ISO27001國際標準規範,確保本府證書之有效性,本府於8月27日進行第三方外部稽核改版驗證作業,以提升民眾對機關之信任。